Préciser votre budget :
OK
Préciser les pièces :
OK
Préciser les chambres :
OK
Préciser la surface :
OK
Préciser la surface :
OK
Plus de critères
Retour aux annonces

A vendre Maison 4 pièces - Terrain 296 m² Saint-Pierre (97410) - Réunion

468 000 € FAI* soit 4 415 € /m²
miniature miniature
Empruntez aux meilleures conditionslogo meilleur taux

MAISON à vendre - Saint-Pierre

MAISON À VENDRE Saint-Pierre, quartier de la Cafrine:
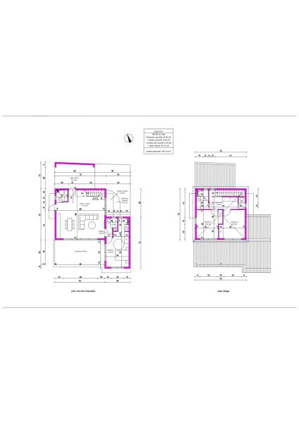
Le Cabinet Lemerle et Rivière vous propose cette maison de 106 m² habitables, en construction, située sur le secteur de la Cafrine. Pensée pour conjuguer esthétique et confort elle conviendra à votre vie de famille. Et point sérénité complémentaire : la garantie décennale.
 
DÉTAILS DU BIEN EN VENTE à La Cafrine, Saint-Pierre :
Dès l’entrée, vous serez séduit par la fluidité des espaces : un grand séjour ouvert sur une cuisine moderne et une salle à manger conviviale, prolongés par une belle terrasse pour profiter pleinement de l’extérieur.
La suite parentale au rez-de-chaussée garantit calme et intimité, avec sa salle d’eau privative. À l’étage, deux chambres, une salle d’eau et des toilettes indépendantes complètent harmonieusement l’ensemble.
Cette maison a été imaginée pour répondre aux besoins d’une vie de famille agréable, dans un environnement à taille humaine, à quelques minutes du centre-ville de Saint-Pierre.
Ce que vous allez aimer :
- Le confort d’une construction neuve réalisée dans les règles de l’art
- Des garanties décennales pour un achat en toute confiance
- La possibilité de choisir vos finitions selon vos envies
- Livraison prévue pour mars 2026
Les informations sur les risques auxquels ce bien est exposé sont disponibles sur le site Géorisques : www.georisques.gouv.fr
L'Avis de Muriel, votre conseillère en immobilier :
Cette maison allie modernité, luminosité et sérénité. Un projet idéal pour ceux qui souhaitent s’installer dans un cadre agréable tout en bénéficiant des garanties du neuf.
 
LES INFOS/ CONTACT:
Prix : 468.000 €, honoraires charge vendeur
Réf : MPR 3368
Négociateur : Muriel PAYET-RÉGENT : [coordonnées réservées]
Agent commercial sous le N° RSAC 934 502 410 à Saint Pierre
Annonce rédigée sous la responsabilité éditoriale de l'agent.
 
 
***
Cette annonce vous est proposée par l'agence immobilière: LEMERLE & RIVIERE à ST PIERRE REUNION.
Estimation de votre bien immobilier à ST-PIERRE (97410) au [coordonnées réservées].
LEMERLE & RIVIERE à ST-PIERRE REUNION, diffuse dans l'intérêt de ses clients, acheteurs et vendeurs, des centaines d'annonces immobilières afin de faciliter l'achat, la vente et la location de votre maison/ appartement/ terrain.
EN BREF: Faites-nous confiance pour acheter, vendre ou louer un bien immobilier à ST-PIERRE (97410). 
A bientôt!
Nos tarifs : http://www.lemerle-riviere.re/honoraires.pdf
 

Caractéristiques de cette maison 4 pièces à vendre à Saint-Pierre (97410)

  • Nombre de pièces : 4 pièces
  • Nombre de chambres : 3 chambres
  • Surface habitable : 106 m²
  • Surface du terrain : 296 m²
  • Référence de l'annonce : MPR3368
  • Prix de vente : 468 000 € FAI (Frais d'Agence Inclus)*
Empruntez aux meilleures conditionslogo meilleur taux

Cette annonce immobilière vous est proposée par :

LEMERLE & RIVIERE

Ce bien vous intéresse ?
Contactez l'agence dès aujourd'hui...

En savoir plus sur l'agence LEMERLE & RIVIERE

Cette agence immobilière propose à ce jour 32 biens à la vente et 11 biens à la location sur Immodesiles.fr.

Le barème d'honoraires de l'agence ne nous a pas été transmis.

Autres maisons à vendre à Saint-Pierre (97410), susceptibles de vous intéresser

maison 4 pièces 117m2 - bois d'olives 8 Maison 4 pièces Saint-Pierre (97410) 4 pièces, 3 chambres, 117 m² hab. LaKaz Société Immobilière vous propose à la vente une magnifique maison 4 pièces de 117m2 habitables en RDC + R+1 isitué dans un lotissement calme à Saint-Pierre. Cette maison située à Bois d'Olive se compose : Rez-de-chaussée :Un grand séjour lumineux climatiséUne cuisine ouverte Une b... Réf. 2209Lakaz 419 000 € soit 3 581 € /m² le charme de terre sainte à 200m du lagon - maison de ville à réinventer 7 Maison 4 pièces - Terrain 80 m² Saint-Pierre (97410) 4 pièces, 2 chambres, 70 m² hab., terrain 80 m² Le bien est idéalement située au coeur du quartier prisé et authentique de Terre Sainte, Vous serez séduit par le potentiel de cette maison de ville. Nichée dans une ruelle calme, à seulement 2 minutes à pied du front de mer, elle n'attend que votre vision pour révéler tout son caractère. ... Réf. 109453Sunkaz 230 000 € soit 3 286 € /m² case  créole t3 duplex rénové 3 Maison 3 pièces Saint-Pierre (97410) 3 pièces, 70 m² hab. Venez visiter cette petite villa créole de 70 M2 composé comme suit au rez de chaussée , une cuisine , un séjour , deux chambres , un wc une salle de bains , à l'étage une mezzanine ; bien idéal pour la location ( rapport 2200€) Chauffe eau solaire , attenant deux bungalows de 30 m2 sur une... Réf. SP 5468Ofim 330 000 € soit 4 714 € /m² 8 Maison 4 pièces - Terrain 134 m² Saint-Pierre (97410) 4 pièces, 3 chambres, 78 m² hab., terrain 134 m² Maison T4 SAINT PIERRE lumineuse et idéalement située ! - À VENDRE SAINT PIERRE CONDE 400 Découvrez cette charmante maison T4, un espace de vie idéal pour ceux qui recherchent confort, tranquillité et facilité vers l'axe rapide située Condé 400, non loin du rond point "MON CAPRICE" à la L... Réf. TMAI153912Citya Delmonte Immobilier 285 000 € soit 3 654 € /m² maison f4 recente  ligne des bambous 8 Maison 4 pièces - Terrain 242 m² Saint-Pierre (97410) 4 pièces, 3 chambres, 90 m² hab., terrain 242 m² SAINT PIERRE LIGNE DES BAMBOUS, découvrez cette maison individuelle de type F4, construite en 2017, sur un terrain de 242 M2. Moderne, fonctionnelle et lumineuse, elle offre une surface habitable de 90.39 M2. Au rez de chaussée, vous trouverez, un séjour ouvert sur la terrasse, une cuisine améri... Réf. 617Vendali Ii 336 000 € soit 3 717 € /m²