Préciser votre budget :
OK
Préciser les pièces :
OK
Préciser les chambres :
OK
Préciser la surface :
OK
Préciser la surface :
OK
Plus de critères
Retour aux annonces

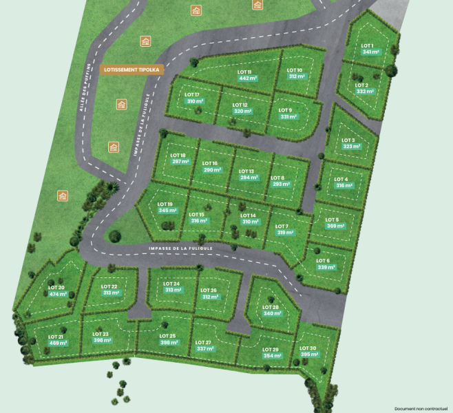
A vendre Terrain 331 m² Saint-Paul (97460) - Réunion

200 000 € FAI* soit 604 € /m²
miniature miniature miniature miniature
Empruntez aux meilleures conditionslogo meilleur taux

A VENDRE - PARCELLE VIABILISÉE DE 331 M2 À MARIE CAZE, LA PLAINE SAINT PAUL

Entre Savanna et la Plaine Saint Paul, CBo Territoria développe au coeur du nouveau Quartier de Marie Caze, le lotissement Zoiseau Blanc.Découvrez ces parcelles viabilisées et prêtes à bâtir, à proximité du lycée Saint-Paul IV, du CHOR et des commerces de proximité, et devenez propriétaire dans un environnement privilégié et résidentiel de l'ouest.Nous vous proposons cette parcelle de 331 m2 qui n'attend plus que votre future maison.
Prix de vente : 200 000 € FAI TTC Prix net vendeur : 189 150 € TTC Honoraires : 10 850 € TTC à la charge du vendeur
Les informations sur les risques auxquels ce bien est exposé sont disponibles sur le site Géorisques : www.georisques.gouv.fr

Caractéristiques de ce terrain à vendre à Saint-Paul (97460)

  • Surface habitable : 331 m²
  • Surface du terrain : 331 m²
  • Référence de l'annonce : 759-09
  • Prix de vente : 200 000 € FAI (Frais d'Agence Inclus)*
Empruntez aux meilleures conditionslogo meilleur taux

Cette annonce immobilière vous est proposée par :

L'AGENCE BY CBO

97438 Sainte-Marie

Ce bien vous intéresse ?
Contactez l'agence dès aujourd'hui...

En savoir plus sur l'agence L'AGENCE BY CBO

Cette agence immobilière propose à ce jour 94 biens à la vente sur Immodesiles.fr.

Vous pouvez consulter le barème d'honoraires de l'agence.

Autres terrains à vendre à Saint-Paul (97460), susceptibles de vous intéresser

a vendre - parcelle viabilisÉe de 313 m2 À marie caze, la plaine saint paul 2 Terrain 313 m² Saint-Paul (97460) terrain 313 m² Entre Savanna et la Plaine Saint Paul, CBo Territoria développe au coeur du nouveau Quartier de Marie Caze, le lotissement Zoiseau Blanc.Découvrez ces parcelles viabilisées et prêtes à bâtir, à proximité du lycée Saint-Paul IV, du CHOR et des commerces de proximité, et devenez propriétair... Réf. 759-22L'agence By Cbo 270 000 € soit 863 € /m² a vendre - parcelle viabilisÉe de 312 m2 À marie caze, la plaine saint paul 4 Terrain 312 m² Saint-Paul (97460) terrain 312 m² Entre Savanna et la Plaine Saint Paul, CBo Territoria développe au coeur du nouveau Quartier de Marie Caze, le lotissement Zoiseau Blanc.Découvrez ces parcelles viabilisées et prêtes à bâtir, à proximité du lycée Saint-Paul IV, du CHOR et des commerces de proximité, et devenez propriétair... Réf. 759-10L'agence By Cbo 220 000 € soit 705 € /m² 3 Terrain 2148 m² Saint-Paul (97460) terrain 2148 m² À VENDRE en Exclusivité à SAINT PAUL DE LA REUNION, Bellemène les Hauts, à quelques minutes des commerces du centre ville de Bellemène St Paul, à 530 mètres d'altitude, venez découvrir ce terrain borné et plat, situé dans une impasse, d'environ 2 148m² avec une surface à construire d'e... Réf. WLFP-79W-WYUAct'immo 299 000 € soit 139 € /m² 6 Terrain 595 m² Saint-Paul (97460) terrain 595 m² TERRAIN A VENDRE A SAINT PAUL DE LA REUNION, A BELLEMENE, à 380 mètres d'altitude, venez découvrir un terrain borné et plat d'une surface d'environ 595 m² . Vous profiterez d'une micro station neuve qui sera installée par le propriétaire, d'un raccordement en eau potable, qui est d'ores et d... Réf. NENP-BY8-5ESAct'immo 315 000 € soit 529 € /m² a vendre - parcelle viabilisée de 291 m2 à marie caze, la plaine saint paul 3 Terrain 291 m² Saint-Paul (97460) terrain 291 m² Entre Savanna et la Plaine Saint Paul, CBo Territoria  développe au coeur du nouveau Quartier de Marie Caze, le lotissement Les Zirondelles. Découvrez ces parcelles viabilisées et prêtes à bâtir, à proximité du lycée Saint-Paul IV, du CHOR et des commerces de proximité, et devenez propriÃ... Réf. 751-34L'agence By Cbo 190 000 € soit 653 € /m²