Préciser votre budget :
OK
Préciser les pièces :
OK
Préciser les chambres :
OK
Préciser la surface :
OK
Préciser la surface :
OK
Plus de critères
Retour aux annonces

A vendre Terrain 313 m² Saint-Paul (97460) - Réunion

270 000 € FAI* soit 863 € /m²
miniature miniature
Empruntez aux meilleures conditionslogo meilleur taux

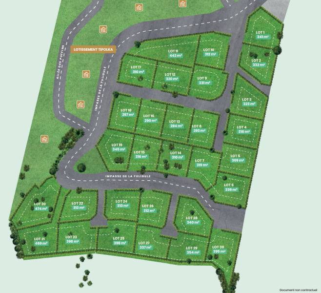
A VENDRE - PARCELLE VIABILISÉE DE 313 M2 À MARIE CAZE, LA PLAINE SAINT PAUL

Entre Savanna et la Plaine Saint Paul, CBo Territoria développe au coeur du nouveau Quartier de Marie Caze, le lotissement Zoiseau Blanc.Découvrez ces parcelles viabilisées et prêtes à bâtir, à proximité du lycée Saint-Paul IV, du CHOR et des commerces de proximité, et devenez propriétaire dans un environnement privilégié et résidentiel de l'ouest.Nous vous proposons cette parcelle de 313 m2 qui n'attend plus que votre future maison.
Prix de vente : 270 000 € FAI TTC Prix net vendeur : 255 353 € TTC Honoraires : 14 648 € TTC à la charge du vendeur
Les informations sur les risques auxquels ce bien est exposé sont disponibles sur le site Géorisques : www.georisques.gouv.fr

Caractéristiques de ce terrain à vendre à Saint-Paul (97460)

  • Surface habitable : 313 m²
  • Surface du terrain : 313 m²
  • Référence de l'annonce : 759-22
  • Prix de vente : 270 000 € FAI (Frais d'Agence Inclus)*
Empruntez aux meilleures conditionslogo meilleur taux

Cette annonce immobilière vous est proposée par :

L'AGENCE BY CBO

97438 Sainte-Marie

Ce bien vous intéresse ?
Contactez l'agence dès aujourd'hui...

En savoir plus sur l'agence L'AGENCE BY CBO

Cette agence immobilière propose à ce jour 94 biens à la vente sur Immodesiles.fr.

Vous pouvez consulter le barème d'honoraires de l'agence.

Autres terrains à vendre à Saint-Paul (97460), susceptibles de vous intéresser

a vendre - parcelle viabilisée de 291 m2 à marie caze, la plaine saint paul 3 Terrain 291 m² Saint-Paul (97460) terrain 291 m² Entre Savanna et la Plaine Saint Paul, CBo Territoria  développe au coeur du nouveau Quartier de Marie Caze, le lotissement Les Zirondelles. Découvrez ces parcelles viabilisées et prêtes à bâtir, à proximité du lycée Saint-Paul IV, du CHOR et des commerces de proximité, et devenez propriÃ... Réf. 751-34L'agence By Cbo 190 000 € soit 653 € /m² a vendre - parcelle de 273m2 dans le lotissement ti polka à marie caze 3 Terrain 334 m² Saint-Paul (97460) terrain 334 m² Entre Savanna et la Plaine Saint Paul, CBo Territoria vous présente le lotissement Ti Polka 2 et vous propose une parcelle de 334m2 viabilisée et prête à bâtir qui n'attend plus que votre future maison. Situé au coeur du Quartier Marie Caze, à proximité du lycée Saint-Paul IV, du CHOR et de... Réf. 757-42L'agence By Cbo 255 000 € soit 763 € /m² a vendre - parcelle viabilisÉe de 442 m2 À marie caze, la plaine saint paul 4 Terrain 442 m² Saint-Paul (97460) terrain 442 m² Entre Savanna et la Plaine Saint Paul, CBo Territoria développe au coeur du nouveau Quartier de Marie Caze, le lotissement Zoiseau Blanc.Découvrez ces parcelles viabilisées et prêtes à bâtir, à proximité du lycée Saint-Paul IV, du CHOR et des commerces de proximité, et devenez propriétair... Réf. 759-11L'agence By Cbo 320 000 € soit 724 € /m² a vendre - parcelle viabilisée de 304 m2 à marie caze, la plaine saint paul 4 Terrain 304 m² Saint-Paul (97460) terrain 304 m² Entre Savanna et la Plaine Saint Paul, CBo Territoria  développe au coeur du nouveau Quartier de Marie Caze, le lotissement Les Zirondelles. Découvrez ces parcelles viabilisées et prêtes à bâtir, à proximité du lycée Saint-Paul IV, du CHOR et des commerces de proximité, et devenez propriÃ... Réf. 751-33L'agence By Cbo 198 000 € soit 651 € /m² a vendre - parcelle viabilisÉe de 331 m2 À marie caze, la plaine saint paul 4 Terrain 331 m² Saint-Paul (97460) terrain 331 m² Entre Savanna et la Plaine Saint Paul, CBo Territoria développe au coeur du nouveau Quartier de Marie Caze, le lotissement Zoiseau Blanc.Découvrez ces parcelles viabilisées et prêtes à bâtir, à proximité du lycée Saint-Paul IV, du CHOR et des commerces de proximité, et devenez propriétair... Réf. 759-09L'agence By Cbo 200 000 € soit 604 € /m²